Oferta sprzedaży wyjątkowej nieruchomości na ul. Piotrkowskiej 121, w kamienicy zlokalizowanej blisko Pasażu Schillera. Odnowiona i zmodernizowana kamienica usytuowana w sercu miasta przy najbardziej znanej i reprezentacyjnej ulicy Łodzi - Piotrkowskiej. Kamienica położona jest w Śródmieściu, w prestiżowym sąsiedztwie wielu instytucji, teatrów, urzędów, uczelni wyższych, hoteli, sklepów, kawiarni i ogródków restauracyjnych. W okolicy znajduje się OFF Piotrkowska Center, Park Sienkiewicza, Galeria Łódzka, nieco dalej - emanujące nowoczesnością Nowe Centrum Łodzi skupione wokół głównego dworca kolejowego. Tętniące życiem miasto dostarcza inspiracji i motywacji do działania, jest także miejscem spotkań biznesowych i towarzyskich.
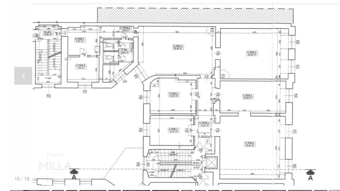
Nieruchomość o powierzchni 206 m2 znajduje się na 3 piętrze w kamienicy posiadającej windę. Piękne, duże, jasne wnętrza pozwalają stworzyć przestronny, komfortowy apartament lub przestrzeń biurową z wyjątkowym klimatem.
Obecny układ pomieszczeń to 6 pokoi, kuchnia, łazienka z WC i 2 korytarze. Istnieje możliwość podziału i wyodrębnienia 2 lokali.
Nieruchomość jest wyjątkowo cicha, nie docierają tu odgłosy z ulicy. Układ budynku sprawia, iż nieruchomość jest bardzo kameralna. Na każdym piętrze znajdują się jedynie dwa mieszkania, łącznie w kamienicy jest 8 lokatorów.
Lokal posiada doskonałą lokalizację w centrum miasta, na wyciągnięcie ręki do wszelkich atrakcji ulicy Piotrkowskiej.
Powyższa oferta ma charakter informacyjny i nie stanowi oferty handlowej w rozumieniu art.66 kodeksu cywilnego.
Lokal użytkowy 206 m2 Piotrkowska 121
lokalizacja: Łódź, Piotrkowska
1 500 000,00 PLN
7 281,91 PLN
Dane szczegółowe
- Typ transakcji: sprzedaż
- Typ nieruchomości: Komercyjny
- Lokalizacja: Łódź Śródmieście, Piotrkowska
- Powierzchnia:205,99 m2
- Liczba pokoi: 6
- Rok budowy: 1880
- Piętro: 3 z 4
- Numer oferty: MNO982363
- Cena: 1 500 000,00 PLN
- Cena za m2: 7 281,91 PLN
Opis nieruchomości
Kontakt do opiekuna:
MILLA Marzena Milewska